Дом по адресу Новосибирск, Сторожевая улица, за 6800000 р.

Адрес Новосибирск, Сторожевая улица
Цена 6 800 000 р.
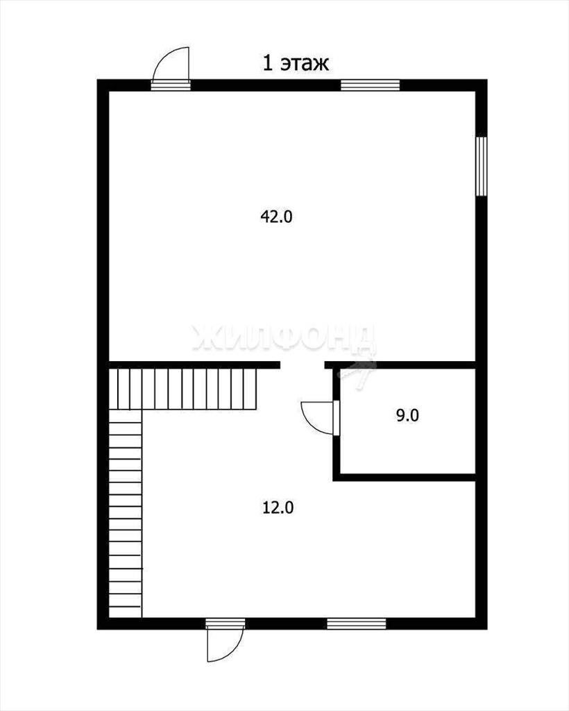
Площадь дома 195 м2, участка 3 м2
1/2 коттеджа по ул. Сторожевая. Общей площадью: 195.00 кв.м. ПРОДАЁТСЯ 2-х этажный КИРПИЧНЫЙ ДОМ, 195 кв. метров! В САМОМ ЭКОЛОГИЧЕСКОМ ЧИСТОМ РАЙОНЕ ОбьГЭС, рядом с Обским морем! ТАУНХАУС 1.2 с интеллигентными соседями. Дом под чистовую самоотделку. Планировка дома очень удобная и функциональная. Дом классической кирпичной кладки, толщина стен 60 см+утеплитель, перекрытия железобетонные. Фундамент ленточный, подушка 3 метра . Осталась отделка под ваш вкус. В дом уже ЗАВЕДЁН И ПОДКЛЮЧЕН ГАЗ. Установлены ТЁПЛЫЕ ПОЛЫ. На 1-ом этаже: просторная прихожая, большая кухня, уютная гостиная, сан. узел. На 2-ом этаже расположены: 3 большие спальни и санузел. Поставлена металлокаркасная лестница, широкая и удобна Есть глубокий подвал. С дома есть выход на свой земельный участок (3 сотки) из гостиной. Выполнена основная часть работ: полностью установлена система отопления, стены выровнены и оштукатурены под чистовую отделку, установлена местная канализация, проведена центральная холодная вода, газ, на полу стяжки и тёплые полы, пластиковые окна и надёжные входные двери. ИНФРАСТРУКТУРА : Очень тихий и развитый район, расположение таунхауса - в центре микрорайона ОбьГЭС в зеленой части города. Рядом морская набережная, пляжи. До остановки общественного транспорта 150 метров- 3 минуты ходьбы, возможность уехать практически в любую точку города. Хорошая транспортная доступность. До ближайшей школы и дет. сада 800 метров, много магазинов и рынков. Не уезжая из Новосибирска, можно каждый день лета загорать и купаться на море ЗВОНИТЕ, СМОТРИТЕ, ЖИВИТЕ В УДОВОЛЬСТВИЕ! РАССМОТРИМ ОБМЕН НА КВАРТИРУ. ЧИСТАЯ ПРОДАЖА. Возможен обмен на вашу недвижимость. Возможна продажа в рассрочку. При звонке, пожалуйста, сообщите номер варианта - JV008054117106
Объявление № 23454070
Дата подачи:
21 октября 2025 г. 23:12
Дата обновления:
21 октября 2025 г. 23:12
Просмотров 9 Хотите продать быстрее?

Продавец
Лариса Сергеевна
Показать номер телефона
Пожаловаться
Комментарии:
Добавить